Return to search results

House and Land Packages

Refine search by:

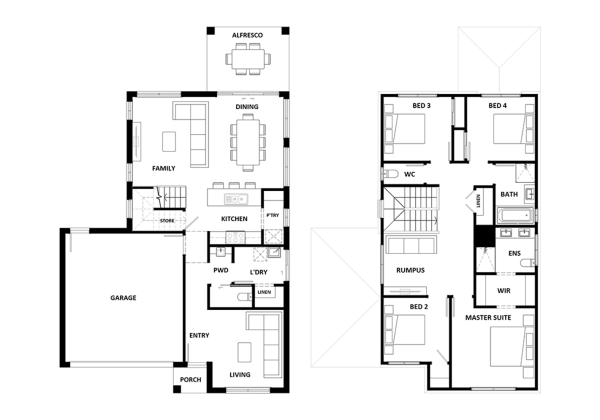
Illawarra 232 - Hotondo - Lot 1007

$ 1,061,400* Land Size: 521m²

House
Bed 4
Bath 2.5
Car 2
Hotondo Homes

Property Description

From the moment you enter, the Illawarra 232 evokes a sense of serenity. The formal living area offers a quiet place to read and relax, tucked away from the rest of the home. Nearby you’ll find the guest powder room and laundry, which boasts clever storage. At the rear of the home, the open-plan entertaining area offers a bright and light-filled space to spend time with family and friends. Double glass sliding doors open to your own outdoor oasis you can enjoy rain, hail, or shine. Upstairs the elegant master suite is ready to make your own, complete with a generous walk-through-robe and modern ensuite with dual vanity. The three remaining bedrooms are conveniently located near the family bathroom and rumpus. Complete with a double garage and built-in storage throughout, the Illawarra is a stunning family home.

Features & Inclusions:

20mm Stone Benchtops
900mm Stainless Steel Appliances
Concrete driveway allowance
Flyscreens
LED Downlights
Remote Garage Door
Vinyl planks, carpet and tiles throughout

If you’re after a team you can trust to build your new house, look no further than Hotondo Homes. We’re a family owned business who take pride in each home that we build.

As each Hotondo Homes builder is independently owned and operated, they have their own reputation to uphold, which is why we’re such a reputable building company. We offer the local area knowledge and customer service of a local builder, combined with the affordability and range of flexible new house designs of a large building network.